Angle Charite - Programmme mixte
Viaduc habité - Programme mixte Viaduc habité - Programme mixte Viaduc habité - Programme mixte

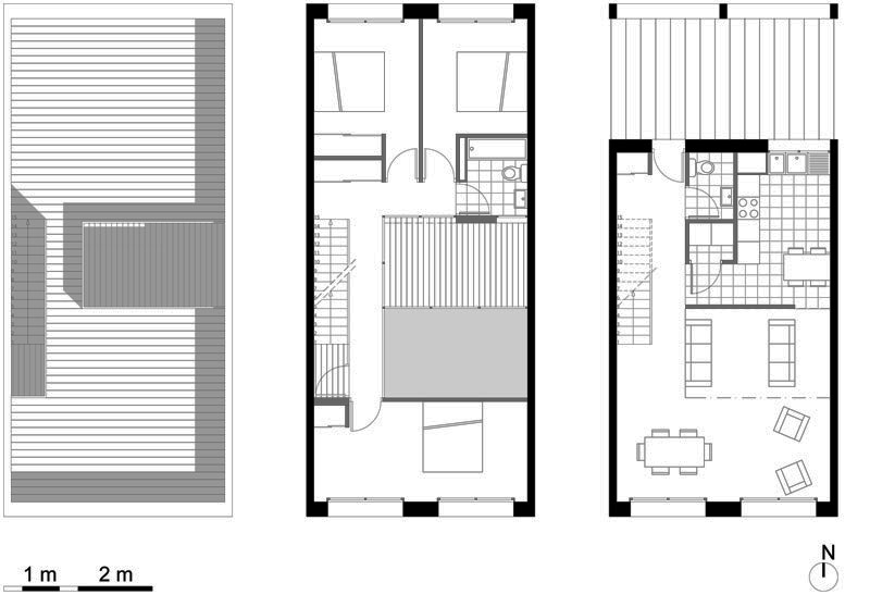
Plan des Logements